Ve výhradním zastoupení vám nabízíme k prodeji stavební pozemek pro výstavbu rodinného domu v atraktivní a klidné lokalitě v blízkosti Mladé Boleslavi.
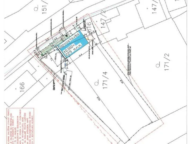
Tento svažitý oplocený pozemek o rozloze 1103 m² se nachází v části obce Horní Krnsko, přímo u obecní asfaltové komunikace, a nabízí nádherné výhledy do okolní přírody.
Hlavní přednosti pozemku je již vypracovaný projekt pro realizaci stavby rodinného domu.
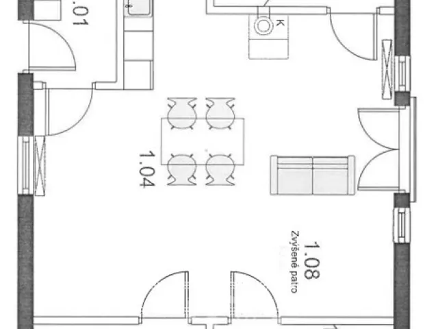
Stavební povolení: Rodinný dům 1NP o půdorysu 11,40 m × 7,60 m se sedlovou střechou, 3 pokoje, obývací pokoj s kuchyňským koutem, koupelna, WC, zádveří a zvýšené patro.
Inženýrské sítě: Obecní voda na hranici pozemku, elektřina dostupná z rozvodů na hranici pozemku, odpady budou řešeny vlastní žumpou.
Strategická poloha: 2 minuty autem ke škole a školce, 5 minut k nájezdu na dálnici směr Liberec – Praha.
Okolní prostředí: Na zahradě se nachází ovocné stromy, v okolí je výhled na zámek Stránov, jedná se o klidnou lokalitu, ve které máte pocit pobytu v přírodě, ale zároveň jste velmi blízko Mladé Boleslavi (přibližně 10 minut) a v blízkosti dálnice, kterou ale na pozemku neuslyšíte.
V případě zájmu zajistíme financování. Bližší informace a prohlídky možné kdykoliv po telefonické domluvě.
- Plocha pozemku: 1 103 m²

Jana Clarke
Máte zájem o tuto nemovitost?
Vyplňte prosím tento formulář a naši kolegové vás budou obratem kontaktovat