Stav nabídkyAktivní

Ve výhradním zastoupení majitele prodáváme rodinný dům / chalupu na "samotě u lesa" s garáží na okraji obce Nová Ves nad Nisou.

Dům byl postaven v roce 1992 a kolaudován v roce 2008, je smíšené konstrukce (kámen, beton, cihla). Střecha je z hliníkových plechů. Dům má dispozici 5+1 + garáž + 2 šatny + další 3 sklepní prostory, podlahová plocha je cca 192 m2. Okna jsou dřevěná s jednosklem dvojitá. Podlahy kombinované, dva komíny. Chalupa je vzdálena 13 min. (9 km) od Ski areálu Tanvaldský špičák.

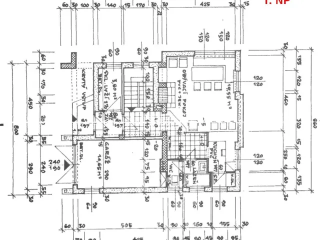
  1. NP - obývací pokoj s krbovými kamny, kuchyň, koupelna, wc, chodba, šatna (lyžárna), komora, garáž,
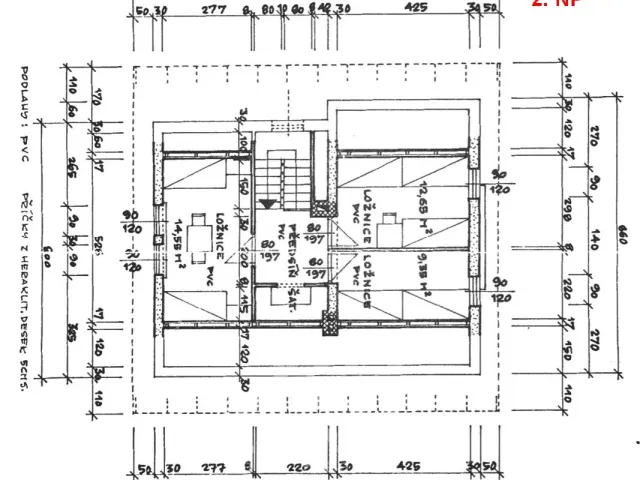
  2. NP - 3 pokoje, šatna,
  3. PP - ložnice s krbem, technická místnost s bojlerem (možno zde mít např. hernu s ping-pongovým stolem), místnost na zahradní náčiní (nebo letní kuchyň v budoucnu), další úložný prostor.

Zeď mezi kuchyní a obývacím pokojem s krbovými kamny údajně není nosná, čili by mohlo vzniknout propojení nebo jedna velká místnost.

Součástí prodeje jsou tyto pozemky:

  • parcela č. 1732/1, 55 m2, zastavěná plocha a nádvoří,
  • parcela č. 1734/2, 48 m2, trvalý travní porost,
  • parcela č. 1730/2, 68 m2, ostatní komunikace,
  • parcela č. 1725/2, 311 m2, ostatní plocha,
  • parcela č. 1725/5, 88 m2, zastavěná plocha a nádvoří, jehož součástí je stavba Nová Ves nad Nisou, č.e. 670, rodinná rekreace.

Velký pozemek za domem p. č. 1725/1 (10.388 m2) patří obci Nová Ves nad Nisou.

Dům je opravdu zajímavý, doporučuji prohlídku, na fotografiích nejsou všechny prostory.

Energie: Elektřina 220 a 380 V, vrtaná studna, jímka, elektrický bojler 125l, přímotopy v místnostech, v 1. NP podlahové elektrické vytápění (kromě obývacího pokoje s krbovými kamny a garáže) , 2x krb, 3-fázový jistič.

Stavba: Cihlová
Stav objektu: V dobrém stavu
Umístění objektu: Samota
Podlaží: 2 podlaží
Užitná plocha: 192 m²
Plocha pozemku: 482 m²
Voda: Studna
Topení: Podlahové vytápění, Přímotop, Krb
Odpad: Jímka
Elektřina: 230V, 400V
Komunikace: Asfaltová
Energetická náročnost budovy: Mimořádně nehospodárná
Bezbariérový: Ne
Vybavení: Částečně
Bazén: Ne
Výtah: Ne
Cena: 6​ ​4​9​0​ ​0​0​0​ ​K​č​

Petr Michal

Realitní makléř
+420 603 192 424
Tato e-mailová adresa je chráněna před spamboty. Pro její zobrazení musíte mít povolen Javascript.

Máte zájem o tuto nemovitost?

Vyplňte prosím tento formulář a naši kolegové vás budou obratem kontaktovat

Odeslání zprávy. Všechna pole označená * jsou povinná.

Kontaktujte nás

phone white +420 770 667 766
mail white Tato e-mailová adresa je chráněna před spamboty. Pro její zobrazení musíte mít povolen Javascript.
web white www.avenir-reality.cz
facebook white Facebook
address white

Avenir Reality s.r.o.
Budovatelská 4821
760 05 Zlín

Ukázat na mapě