Stav nabídkyAktivní

Exkluzivně nabízíme nově zrekonstruovaný podkrovní byt č. 8 (vpravo) o velikosti 1KK s podlahovou plochu 59 m².

Byt se nachází v podkroví, v 5. nadzemním podlaží na adrese Anenské náměstí 7, Jablonec nad Nisou. Byt byl zkolaudován v roce 2024 a nikdo jej dosud neužíval. K bytu je možné koupit vyhrazené parkovací stání ve dvoře s průjezdem přes závoru.

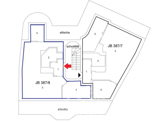
Dispoziční řešení:

  1. předsíň 3.2 m²,
  2. koupelna se sprch. koutem a WC 5.2 m²,
  3. obývací pokoj s kuchyňským koutem 34.1 m²,
  4. šatna (pokoj) 8.8 m²,
  5. komora 4.4 m²,


sklepní kóje v suterénu domu.

Nová kuchyňská linka včetně sporáku se sklokeramickou deskou, ele. trouba, digestoř a myčka. V bytě jsou plastová okna s dvoj- a trojskly, střešní okna, vstupní bezpečnostní protipožární dveře, vinylové podlahy, v koupleně dlažba, elektřina v mědi. Vytápění bytu a ohřev vody zajišťuje plynový kondenzační kotel pro všechny jednotky. Možnost využívat společnou kolárnu a kočárkárnu v suterénu domu. V domě zaveden internet od firmy Artemis, zebezpečení a kamerový systém.

Předpokládané měsíční náklady na bydlení: vytápění 1 500 Kč, elektřina 1 000 Kč, voda 1 000 Kč, fond oprav 20 Kč/m², odvoz odpadků 100 Kč, pojištění domu a ostatní 500 Kč.

Výhody tohoto bytu : soukromí (2 byty na patře, celkem 8 bytových jednotek v domě), veškerá občanská vybavenost v místě (školka, škola, nemocnice, obchody), blízko do centra, na MHD a vlak, Jizerské hory na dosah.

V rámci komplexních realitních služeb zajistíme hypotéku. V případě zájmu kontaktujte makléřku pro sjednání prohlídky.

Stavba: Cihlová
Stav objektu: Ve velmi dobrém stavu
Umístění objektu: Centrum obce
Podlaží: 5. podlaží z 5
Užitná plocha: 59 m²
Voda: Vodovod
Topení: Radiátory
Odpad: Septik
Doprava: Vlak, MHD, Autobus
Komunikace: Asfaltová
Energetická náročnost budovy: Mimořádně nehospodárná
Cena: 3​ ​8​3​0​ ​0​0​0​ ​K​č​

Ing. Hana Karpíšková

Realitní makléř
+420 608 079 680
Tato e-mailová adresa je chráněna před spamboty. Pro její zobrazení musíte mít povolen Javascript.

Máte zájem o tuto nemovitost?

Vyplňte prosím tento formulář a naši kolegové vás budou obratem kontaktovat

Odeslání zprávy. Všechna pole označená * jsou povinná.

Kontaktujte nás

phone white +420 770 667 766
mail white Tato e-mailová adresa je chráněna před spamboty. Pro její zobrazení musíte mít povolen Javascript.
web white www.avenir-reality.cz
facebook white Facebook
address white

Avenir Reality s.r.o.
Budovatelská 4821
760 05 Zlín

Ukázat na mapě